Auction Properties For Sale in Morecambe, Lancashire
SPACIOUS COMMERCIAL PREMISES WITH A FIVE BEDROOMED FLAT ABOVE!To be sold via online auction - powered by The Auction GroupNestled in the charming village of Bare, Morecambe, this remarkable commercial property on Princes Crescent presents an exceptional development opportunity.
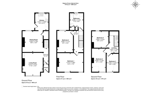
Welcome to this charming and spacious 3-bedroom mid-terrace house, located in the heart of a vibrant community with all amenities at your fingertips. Boasting a generously sized garden perfect for entertaining or relaxing in the sunshine, this property also features gas central heating and double...
AUCTION ENDS 27-11-2025 at 13:00 Discover this charming two-bedroom ground floor flat, ideally situated on the picturesque Morecambe seafront in Bare. Offering resident parking and a private garage with under croft storage, this property is perfect for those seeking both convenience an...
A WELL PRESENTED THREE BEDROOM SEMI DETACHED FAMILY HOME WITH AN EXTENDED KITCHEN. NEW CENTRAL HEATING, KITCHEN AND BATHROOM. LARGE UNDERGROUND STORAGE! The property is being sold via a modern method of auction. Please call or visit YOPA Online Auctions for more information.
Set in a quiet and friendly residential area of Westgate, this well-proportioned two double bedroom semi-detached bungalow offers comfortable living just moments from local amenities including the shops at Westgate Precinct, Westgate Medical Practice, Westgate Primary School, and Lidl and Home Ba...
Auction Sale - 10/12/2025 - To book viewings, view the legal pack and register to bid please refer to the full sales particulars on the Savills Auctions website A freehold five bedroom mid terrace benefitting from loft space, paved area to the rear of the property, in need of renovation th...
*For sale via secure sale online bidding: terms and conditions apply.* We are pleased to offer to auction this three one bedroom apartments set over three floors of accommodation along with lower ground floor cellar space. One apartment is currently rented at £400pcm and the other at &...







































































