Properties For Sale in Penn Hill, Poole, Dorset
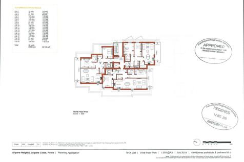
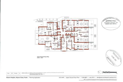
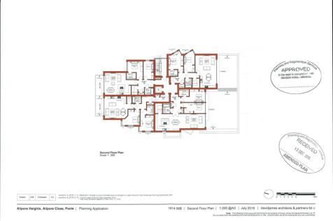
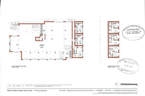
** FANTASTIC DEVELOPMENT OPPORTUNITY ** This rare DEVELOPMENT PLOT is located in LOWER PARKSTONE. Planning has been approved to demolish the existing building and construct 20 LUXURY NEW BUILD APARTMENTS with underground parking. CONTACT OUR LAND DEPARTMENT FOR MORE INFORMATION.
A stunning five bedroom luxury period home with four bathrooms (two en-suite) and a substantial open plan luxury kitchen. This lovely property has particularly large living spaces and is situated in a prestigious road close to local private and state schools, Parkstone station (walking distance).
Constructed some 5 years ago and with the remainder of a 10-year building warranty in place, this architecturally designed contemporary detached home has a superb layout of rooms and a first-class level of finish throughout. The accommodation extends to over 2560 sq/ft and the property enjoys ...
Set on one of Penn Hill’s most sought-after roads, this charming three-bedroom detached home offers exceptional space and versatility across three well-appointed storeys. Occupying a generous plot with beautifully landscaped gardens, private gated access, a detached garage, and remarkabl...
























































































































































































































