Auction Properties For Sale in South London
Auction date - 28/01/2026 & 29/01/2026. Providing Sixteen Rooms in total (Six with ensuite Shower Rooms), together with Communal Facilities, Total GIA approximately 416.8 sq m (4,487 sq ft), Driveway and Rear Garden, Potential to Reconfigure and/or Sub-divide, subject to consents, Close to Ov...
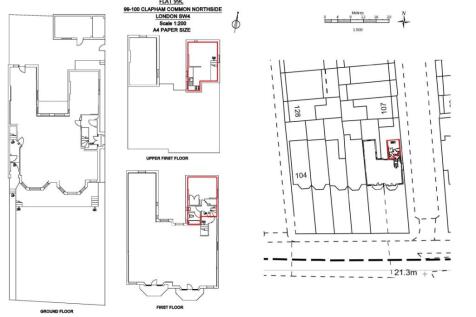
Auction Sale - 27/01/2026 - To book viewings, view the legal pack and register to bid please refer to the full sales particulars on the Savills Auctions website Of interest to developersA six bedroom semi-detached Victorian house, approximately 2,276 sq ft, in need of modernisat...
Located at the end of a long gated driveway, 'Mayfield' is a stunning opportunity to purchase a substantial five bedroom detached house with internal accommodation measuring in excess of 2800 sq ft. The property features a spacious entrance hallway, leading to a 26ft by 15ft lounge, contemp...
Cherry Lodge is a rare and exciting opportunity to acquire a substantial six-bedroom double-fronted Victorian residence in completely unmodernised condition. Brimming with original character and charm, plus a substantial cellar, this imposing home sits proudly on a generous plot and features a ca...
Auction Sale - 27/01/2026 - To book viewings, view the legal pack and register to bid please refer to the full sales particulars on the Savills Auctions website Of interest to investors, developers and owner occupiers.A large semi-detached house with 8 rooms, 2 kitchens, 3 bathrooms,...
INFORMATION FROM THE AGENT: This substantial detached home in Carshalton Beeches offers over 6,000 sq ft of space and versatility. Perfect for a growing or multi-generational family, it presents a rare opportunity to reimagine and personalise a truly expansive home. Whether you're seeking room t...
Situated on the prestigious Whitgift Foundation Estate this five bedroom double fronted detached family home boasts accommodation comprising an impressive entrance hall with cloakroom, two bay fronted reception rooms, additional 20'3 x 11'3 conservatory and kitchen to the ground floor and master ...




























