Properties For Sale in Tuddenham St. Martin, Ipswich, Suffolk
ABSOLUTELY STUNNING 3 BED COTTAGE FULL OF CHARACTER - 19'5 X 12'7 LOUNGE/DINER WITH FEATURE WOOD BURNER IN CHIMNEY BREAST WITH BEAMS - THREE FIRST FLOOR BEDROOMS - FAMILY BATHROOM - DOUBLE DRIVEWAY PARKING - FANTASTIC VIEWS OVER VILLAGE OF TUDDENHAM, FYNN VALLEY & CHURCHYARD - MODERN FITTED KITC...
This Grade II listed, pink, heavily beamed cottage is in the popular village of Witnesham, just 10 minutes drive from Ipswich. This family sized property offers three bedrooms, large sitting room, separate dining room and beautiful sun room overlooking the gardens and rural views beyond. The matu...
Situated on a GENEROUS PLOT, in popular OTLEY VILLAGE, is this DETACHED THREE BEDROOM BUNGALOW with PRIVATE rear GARDEN, TWO GARAGES and off road PARKING for multiple vehicles. Accommodation comprises entrance porch, hall, sitting room, dining room, kitchen and separate UTILITY ROOM, with...
This well-presented, double plot, detached bungalow has been extended to the rear and boasts three double bedrooms, a cloakroom, a seperate shower room, three reception rooms, a large kitchen, with an opening to the dining room, ample parking and a beautiful rear garden. **NO ONWARD CHAIN**
This stunning detached home in Crowfield features a large lounge diner with dual aspect windows and a multi-fuel burner, an integrated kitchen, three bedrooms, a family bathroom, off-road parking, a double garage, and an enclosed rear garden with beautiful field views.
This enchanting Grade II Listed house beautifully restored, with a wealth of exceptional charm and character. The property showcases an abundance of period features, including exposed brickwork, timber beams, and two magnificent inglenook fireplaces each housing a wood burning stove. Open count...
Offered for sale CHAIN FREE, this bespoke built property offers three bedroom across both the ground and first floors, all of good size and very presented throughout. With ample off road parking as well as single garage, sitting room, sizeable garden room as well as kitchen breakfast room...
We are delighted to be offering for sale this 4 bedroom detached family home built in the early eighties and located in the village of Witnesham which is just 5 miles North of Ipswich with a short drive to the local public house The Barley Mow and Fynn Valley golf club. Arranged over 2 floors the...
Situated in a CUL-DE-SAC location, in popular Otley Village, is this SEMI-DETACHED THREE BEDROOM FAMILY HOME with PRIVATE rear GARDEN, GARAGE and off road PARKING. Accommodation comprises entrance hall, sitting/dining room, kitchen and downstairs cloakroom, with three bedrooms, with bedroom on...
Guide price for a Home for Life Lifetime Lease for OVER 60s tailored to your personal circumstances and requirements. Your price may vary. OVER 60S could benefit from SAVINGS of up to 59% from the market value with a one-off payment for a Lifetime Lease on this property. £30...
We are pleased to offer for sale this MOST ATTRACTIVE, DECEPTIVELY SPACIOUS, THREE BEDROOM PERIOD VILLAGE HOUSE, presented in superb condition throughout, ready for immediate occupation. With appealing garden and views over meadowland to the rear. Offered with no onward chain.
ABSOLUTELY STUNNING 3 BED COTTAGE FULL OF CHARACTER - 19'5 X 12'7 LOUNGE/DINER WITH FEATURE WOOD BURNER IN CHIMNEY BREAST WITH BEAMS - THREE FIRST FLOOR BEDROOMS - FAMILY BATHROOM - DOUBLE DRIVEWAY PARKING - FANTASTIC VIEWS OVER VILLAGE OF TUDDENHAM, FYNN VALLEY & CHURCHYARD - MODERN FITTED KITC...
*** SELF-BUILD PLOT *** Palmer & Partners are delighted to present to the market an exciting opportunity to acquire a generous self-build plot which has full planning permission to construct a spacious and individually designed detached home measuring approximately 2,315 sq ft. Th...
This exquisite Suffolk cottage represents a rare opportunity to acquire a home of exceptional charm and timeless character. Painted in the classic Suffolk pink and crowned by a well maintained thatched roof, the property’s façade is further enhanced by hand-painted timber windows in Tus...
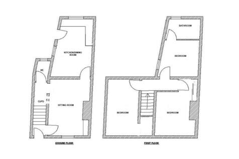
Rarely available. A TWO BEDROOM terraced cottage, situated in the enviable Suffolk village of Tuddenham. The property has undergone extensive modernisation with many fine period features. The property also enjoys a good sized rear garden and an elevated front garden with (cont.)



























































































































































































































