Properties For Sale by Church & Hawes, Burnham on Crouch, including sold STC
144 results
FEATURED PROPERTY - THE CROUCH, PLOT 35. This high specification home benefits from a principal bedroom with en-suite and built in wardrobe, a spacious second bedroom with feature bay window, large luxurious bathroom and stunning open plan living space with feature floor to ceiling windows. Sho...
Guide Price £1,650,000 - £1,700,000. An exquisite individual residence located along one of Burnham's most prestigious private postcodes. Total floor area nearing 8000 sq. ft (including garages) the principal house offers a little under 6500 sq. ft. spread over three floors featuring an impressiv...
A stunning Grade II Listed former farmhouse, located in a delightful private setting offering overall grounds approaching 14 ACRES which up until recently has been partly used by the vendors and the local community as a cricket field. The principle dwelling offers spacious accommodation including...
Nestled amongst an exclusive development of executive detached properties within one of Burnham's most favoured locations, is this vastly improved, extended and wonderfully presented family home. Substantial living accommodation (3800 sq. ft.) is spread over three floors, commencing on the ground...
BRAND NEW executive detached property set along one of Burnham's most favoured and picturesque roads. Positioned on the fringes of Burnham, the property offers a perfect blend of countryside living, yet still within easy reach of local amenities, all of which are within walking distance. The pro...
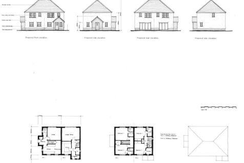
GUIDE PRICE £950,000 - £1,000,000. STUNNING SIZE...CHECK OUT THIS FLOOR PLAN. Boasting nearly 3500 sq ft of accommodation over two floor is this brand new detached dwelling located in the very attractive and highly sought after private location of Stoney Hills. The property boasts impressivel...
A superb opportunity to purchase this attractive and imposing red brick former farm house, built circa 1840 (later extended) sitting on 1.8 acre grounds. The residence benefits from not being a listed building, albeit enjoying much unspoilt character to both its double gabled exterior elevations ...
A stunning Grade II Listed former farmhouse, located in a delightful private village setting offering overall grounds of a little over 10 ACRES . The principle dwelling offers spacious accommodation including four bedrooms, six reception rooms and two bathrooms. Additionally there are a number of...
No Onward Chain. An Exquisite Executive Residence in the Prestigious Corinthian Place development. Occupying an exceptional position overlooking a beautifully landscaped greensward within the highly coveted Corinthian Place development, this magnificent detached family residence represents th...
BRAND NEW EXECUTIVE FOUR BEDROOM DETACHED PROPERTY IN HIGHLY SOUGHT AFTER LOCATION- Forming part of a new executive development made up of 5 detached properties set along one of Burnham's most favoured and picturesque country lanes. Positioned on the fringes of Burnham, these properties offer a p...
4/5-Bedroom Detached Home on Highly Sought-After Private Road. Nestled on a prestigious private road on the fringes of Burnham-on-Crouch, this executive detached residence is an exceptional opportunity for discerning buyers. Priced to sell and offered with no onward chain, this stunning property...
Nearing completion is this STUNNING BRAND NEW 1927 SQ FT DETACHED BUNGALOW WITH DETACHED DOUBLE GARAGE AND 0.9 ACRE PLOT. A select development of brand new executive detached spacious bungalows located on the fringes of Burnham on Crouch down one of the town's premier roads consisting of only det...
Stunningly positioned overlooking the Blackwater Estuary with panoramic waterside views, is this superb detached family residence offering extensive living accommodation throughout comprising four/five generously sized and well proportioned bedrooms, the largest of which is complimented by an en-...
NO ONWARD CHAIN – Substantial Family Home on 0.4 Acre Plot. Occupying a prime position at the heart of this highly sought-after development — and widely regarded as its focal point — is this impressive detached family home set within a superb 0.4-acre plot. While some modernisation is requir...
An Immaculately Extended & Stylishly Enhanced Detached Bungalow on a Generous 0.21 Acre Plot Set along a highly sought-after leafy country lane on the fringes of Burnham, this stunning bay-fronted detached bungalow has been superbly extended and finished to an exceptional standard throug...
PLOT 12 'SHOW HOME' NOW FOR SALE AT Burnham Waters. SHOW HOME OPEN BETWEEN 10am & 3pm - Call to book an appointment! SITE INCENTIVES AVAILABLE. 'The BLACKWATER' is the largest bungalow on the BURNHAM WATERS development spanning a generous 138 sq.m. (1485 sq.ft.) of light and airy living a...
BRAND NEW HIGHLY APPOINTED DETACHED BUNGALOW WITH 10 YEAR BUILD WARRENTY! Individually designed and constructed to a very high standard is this extremely spacious 2 double bedroom detached bungalow sitting centrally on a large plot. The eco friendly timber frame build includes a highly effici...
A rare opportunity to acquire this wonderfully spacious and extensively improved detached bungalow, ideally positioned in the heart of the highly sought-after waterside village of Mayland. Offering over 2,000 sq ft of versatile accommodation, this exceptional property is perfectly suited to famil...
PLOT 23 NOW SSTC. This high specification home benefits from a principal bedroom with en-suite and built in wardrobe, a spacious second bedroom with feature bay window, large luxurious bathroom and stunning open plan living space with feature floor to ceiling windows. Show Homes Open 7 days a we...
£650,000 – £675,000 Modern Detached Bungalow with South-Facing Garden Burnham-on-Crouch | Gated Private Turning | NHBC Warranty Remaining | EPC: B Offered with no onward chain, this exceptional two-bedroom detached bungalow is located on the fringes of Burnham-on-Crouch, wit...
***GUIDE PRICE £650,000 TO £675,000*** Positioned favourably at the end of a quiet, peaceful cul-de-sac on the ever sought after Cobbins development on the fringes of Burnham, is this stylishly improved and extended detached family home boasting a stunning garden and a wealth of reconfigured and...
**Guide Price £625,000 - £650,000**A fantastic opportunity to acquire a spacious and versatile four-bedroom detached home set on a generous and secluded plot of over a third of an acre in the desirable village of Althorne. The ground floor features a large entrance hall, 23ft lounge/dining ro...
Positioned favourably at the entrance of the ever-popular Cobbins Development on the outskirts of Burnham, this substantial five-bedroom detached family home offers generously proportioned and well-presented living accommodation throughout, with scope for modernisation. The ground floor welco...






































































































































































































































































































































































































































































