Terraced Houses To Rent in Preston, Lancashire
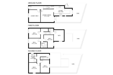
EXTREMELY WELL PRESENTED house in SOUGHT AFTER LOCATION. Comprising MODERN FITTED Kitchen, 2 Large RECEPTION ROOMS, 2 Large DOUBLE BEDROOMS and LARGE SINGLE bedroom plus MODERN FITTED bathroom with WALK IN SHOWER. Large enclosed COURTYARD to the rear. Situated just 5 mins from HOSPITAL
Welcome to Caroline Street, Preston - a charming property that is now available for you to make your own! This delightful home boasts a cosy reception room, perfect for relaxing or entertaining guests. With two lovely bedrooms, there's plenty of space for a small family or guests to stay over. Th...
This well-presented basement apartment is located within an attractive Georgian terrace and offers comfortable, convenient living. The property is part furnished and benefits from gas central heating throughout. Ideally situated within close proximity to the city centre, the apartment provides ea
This welllocated 2-bedroom terraced property on Dallas Street, Preston is close to transport links, local amenities, and the town centre. The property comprises a reception room and kitchen to the ground floor, with two bedrooms and a bathroom upstairs, plus a rear yard. The reception ...
Jones Cameron are pleased to offer for rent this spacious three bedroom property, situated on Oxford Street.The property briefly comprises of a large lounge, a lovely kitchen diner, a three piece family bathroom and three doublebedrooms. Also benefitting from front and rear gardens!
This property has excellent commuter links into the City Centre, one large reception room, two bedrooms, fitted kitchen and modern bathroom. There is a good sized yard to the rear and on-street parking to the front. Available Now - Enquire Online For A Call From Our Viewing Negotiators To Secure
Farrell Heyworth are bringing to the market this two bedroom, mid-terraced rental opportunity in Ashton, Preston. Directly centralised between Blackpool Road, Garstang Road and Preston Railway Station, the location is ideal for a professional working couple whom commute, or a small family. Interna
A modern and well-presented three-bedroom house is available to rent on Vine Street, Preston, offering fresh décor throughout after a full repaint. The property features a bright and spacious living area, a contemporary kitchen with plenty of storage, and three well-proportioned bedrooms,
Newly renovated 3 Bedroom spacious Property to let Welcome to this well-presented home offering generous living space and excellent convenience. The property features three spacious bedrooms, ideal for families or professionals, kitchen, family bathroom and additional WC downstairs.



























