Land For Sale in County Durham
Development site for sale with Outline planning for 18 Self build plots with New Access road and associated landscaping. For full details of the planning application, please visit the Durham Council planning portal and use the reference number of DM/21/01066/OUT. The application was granted on 9t...
*FOR SALE VIA TRADITIONAL AUCTION * GUIDE PRICE £550,000 * BIDDING CLOSES (TBC)* FEES APPLY * REGISTER YOUR INTEREST AT HUNTERS.COM SELECT AUCTIONS A fantastic opportunity consisting of a mixed development of Semi Detached and Terraced Homes. There are 32 plots in total, all with detailed pla...
Bradley Hall are delighted to market for sale, two exclusive residential plots in a highly sought-after residential location close to Durham City. These plots are available as a whole or individually. This is a fantastic opportunity for a purchaser to apply their own stamp t...
ATTENTION ALL RESIDENTIAL DEVELOPMENTS! Set in a picturesque village location this outstanding opportunity to develop 9 new high quality, high specification homes The land is offered to the market at £500,000 or £550,000 with drainage installed by the land owner.
PLOT OF LAND WITH PLANNING PERMISSION FOR 9 DWELLINGS Located on the western boundary of Sunniside, an area of land, clearly defined, extending to approximately 0.49 ha in total. Sunniside is a small settlement, with residential properties located to the North and South of the
An excellent opportunity to purchase a ring fenced block of upland grazing extending to approximately 67.43 hectares (166.61 acres) with roadside access and natural water supplies. The land is situated in Weardale to the north of St Johns Chapel and offers opportunities for the purchase...
Rare to the market this fantastic opportunity to purchase these two stone built semi detached properties plus the land located in the popular area of Dipton. The plot is being sold with both properties and land which comprise Two 2 bedroom stone built semi detached properties, one of which has be...
LOCATION The subject site is in Durham City Centre. The city boasts the world heritage sites Cathedral and Castle complex in the heart of the city Centre. Crossgate is an affluent area, walking distance from the business of the city center retail and leisure areas. DESCRIPTI...
Bradley Hall are delighted to market for sale, two exclusive residential plots in a highly sought-after residential location close to Durham City. These plots are available as a whole or individually and come. This is a fantastic opportunity for a purchaser to apply their ow...
Bradley Hall are delighted to market for sale, two exclusive residential plots in a highly sought-after residential location close to Durham City. These plots are available as a whole or individually. This is a fantastic opportunity for a purchaser to apply their own stamp t...
A SUPERB LOW-DENSITY DEVELOPMENT SITE (former paddock) of about 0.70 acres in all, with PLANNING PERMISSION for 2 large DORMER-STYLE HOMES on about 0.44 acres (Planning Notice 16/00500/FUL) - NB: The foundations have been laid on the 2-PLOT SITE securing the planning permission… Further adjoining...
Superb Self-Build Opportunity in the Idyllic Village of Hart – Full Planning Permission & Foundations Complete !! Situated in the highly sought-after and picturesque village of Hart, this exceptional self-build plot presents a rare opportunity to create a bespoke home in a peacef...
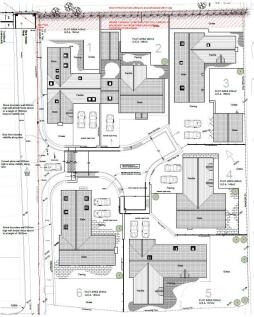
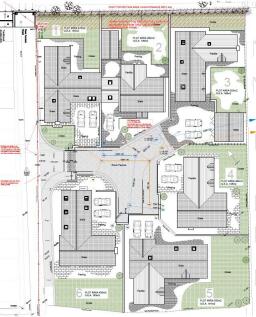
*** 13 PLOTS NOW RESERVED**** ONLY 3 REMAINING SEE DRONE FOOTAGE An exciting and exclusive opportunity to purchase a self build plot within a prestigious and desirable location for 16 luxury homes. The self build parcel is located in the south west corner of the wider site nestled amongst...
VERY DESIRABLE 2.5-Acre POTENTIAL DEVELOPMENT PROPERTY or EQUESTRIAN/LIVESTOCK USE or INVESTMENT OPPORTUNITY - Possible OPTION PURCHASE Arrangement. STUNNING VIEWS over the adjoining countryside. PORTAL BARN (13.57m x 8.74m/44'6" x 28'8"), adjoining STONE BYRE (4.42m x 3.97m/14'6" x 13'0...
*VIEWING STRICTLY APPOINTMENT ONLY VIA THE AGENTS* The subject property is located on Farnley Ridge which is a quiet cul-de-sac on the edge of Durham City Centre. The property is 0.7 miles away from the centre of Durham City Centre. Farnley Ridge is well placed for commuting...












