Land For Sale in Devon
A convenient opportunity to acquire a block of permanent pastureland extending to approximately 13.37 acres ( 5.41 hectares), steep in parts but with some commanding views.Situated on the edge of Bridford in the sought after Teign Valley in Devon. Freehold with vacant possession.
A fascinating Grade II listed period cottage for complete renovation in one of the most popular villages in North Devon. Planning consent for complete re-modelling to provide hall, living room, open plan kitchen/dining room, larder, utility, cloakroom and three bedrooms (all en-suite). Enclosed r...
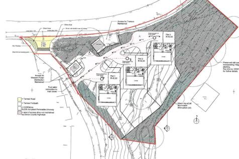
An opportunity arises to purchase a large building plot of approximately 0.57 acres (0.23 hectares) with plans previously approved for the construction of 3 high quality detached houses of approximately 186m2 (2,000ft2) situated on the outskirts of the town enjoying excellent views up the Chamber...
A BUILDING PLOT OF APPROXIMATELY 1/5TH OF AN ACRE! A rare opportunity to purchase a single building plot of approximately 0.21 acres with newly granted outline planning permission for a detached bungalow of up to 201.5 sqm. The Bramble Patch site is conveniently situated adjoining...
This RARE Opportunity Offers Land With An Existing Building And Full Planning Permission Granted For Conversion To A Holiday Home, Complete With A New Porch And Decking Area. This Is A Unique Chance To Secure Land With Planning, Situated In The Picturesque Village Of Shaldon - Perfect For Investo...
Imagine waking up to the sound of the waves, with the golden sands of Combe Martin’s beach just a short stroll away. This rare and exceptional building plot offers you the chance to create something truly special in one of North Devon’s most sought-after coastal villages. S...
A building site of 0.44 of an acre, upon which planning consent has been achieved to build 2 detached quality two storey 4/5 bedroom homes, each covering over 2,500 sq ft. The site is on the semi rural outskirts of Barnstaple but within a healthy walk of Petroc college and the town centre. Freehold.
* FULL PLANNING PERMISSION FOR A 4 BEDROOM, 3 BATHROOM DETACHED HOME * ALL SERVICES TO PLOT * NO CIL PAYMENT * 0.25 ACRE APPROX IN ALL Opportunity to purchase an individual building plot with all services provided and full planning, being approximately 0.25 of an acre, with no liabili...
An exceptionally attractive west sloping parcel of freehold amenity land having road frontage and gated access. 6 acres is a grassy paddock surrounded with deer fencing, 10 acres of mature indigenous woodland, 16 acres in total. In a pretty wooded valley just 2 miles north of Barnstaple, the admi...




















