Commercial Properties For Sale in Gwent
Paid partnerships can play a role in listing order
- Business relocating to neighbouring unit
- Prominent town centre location
- Substantial commercial accommodation
- Attractive and renowned livestock farm of about 135 acres.
- Handsome period farmhouse with generous accommodation.
- No Chain.
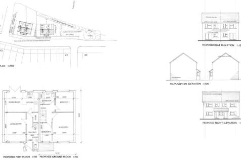
Louvain Properties are pleased to offer this plot of land adjacent Fairfield, Tredegar. Approved planning permission for 2x two semi- detached houses and one detached house. All checks on ground completed. ** CLOSE TO LOCAL SCHOOLS & AMENITIES ** SEMI- DETACHED & DETACHED HOUSE **
Number One agent, Cole Calzaghe is delighted to offer this multiple unit business premises for sale in Abercarn.Located in the sought after area of Abercarn, this property is close to local amenities and allows for easy commuting with fantastic road links and Newbridge train station a few minutes...
This is the last remaining plot available in the attractive cul-de-sac development of Town Farm Meadows with glorious hillside views over the gently undulating Monmouthshire countryside. The plot has extant consent for the construction of a five bedroomed, two bathroom, detached family home with...










