Commercial Properties For Sale in London, serviced office, business park, office
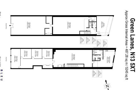
Freehold shop and upper set on ground and first floor 5245 sq.ft. GIA. Ground floor 2 partitioned office space with male & female wc and utility room at rear, door into garage. First floor 4 partitioned offices, male & female w.c and kitchen/dining area. Refurbished to a very high standard a few...
77 Bastwick Street is an attractive building providing approximately 16,837 sq ft (1,564.2 sq m) of office accommodation arranged over lower ground, ground and four upper floors, benefitting from a substantial communal roof terrace. The specification of the office space includes generous floor to...
The property comprises a 5-storey mixed-use building, with commercial on the ground floor and basement and residential on the upper floors. The apartments provide comfort cooling, with the 5th floor apartments benefitting from roof terraces. The commercial element is currently fitted out as medic...


















