Commercial Properties For Sale in Greater London
School Premises in Prime Location. Approximately 9,967 sq. ft on a 0.33 acre siteIdeal for its continued Educational use. The premises is demised over Ground and First floors with various teaching rooms, halls and WC's on siteOutdoor area demised as a play area.
Ground floor retail unit plus studio/1 bedroom flat to basement with outside space. Arranged as follows: Retail unit: 400 sq. ft. Frontage: 13'1 Studio/1 bedroom flat: 500 sq. ft. approx. Comprising double bedroom, kitchen, reception area plus garden.
Artisan Place is a mixed use development constructed in 2015 by Barratt Homes. The scheme includes a terrace of 5 commercial ground floor studio offices. Unit 3 comprises 1,540 sq ft and is fitted out to a high and contemporary standard with a mix of open plan offices space, glass meeting room...
Ground floor suite forming part of an office block having a good frontage to Westmoreland Road with the benefit of two front doors. In addition, there is a further access via the block communal entrance hall. The property has been used as a college and is arranged as offices, classrooms, halls ...
INVESTMENT - An excellent opportunity to acquire a mixed-use investment property in a sought after and well connected area. The property comprises:- A ground floor self-contained commercial unit currently occupied on a new 10 year Full Repairing and Insuring (FRI) lease producing a rental incom...
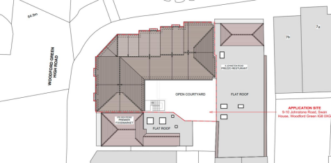
** DEVELOPMENT OPPORTUNITY FOR SALE ** - Located prominently on the corner of Johnston Road and High Road, Woodford Green (A104). This particular section of the High Road consists of a variety of shops, restaurants, offices and flats. Woodford Underground Station is on the Central Line and provid...
Fully let mixed-use freehold near Clapham Common. Ground floor retail & 2-bed flat above producing £45,000 p.a. Excellent location with strong transport links. Retail let to 2035 (mutual break 2027), flat to 2026. Approx. 900 sq ft.
The premises consist of a two-storey building with part brick part metal cladelevations under a pitched roof. The premises have a roller shutter door butare principally laid out as storage offices and showroom.
The floor benefits from wooden flooring, as well as good ceiling height to provide characterful office floors. This period building is configured over lower ground to 5th floors and benefits from a passenger lift. Being located on the 3rd floor provides ample natural light.







