Land For Sale in Worcestershire
Opportunity to acquire a Development Site with previous planning granted for 13 units Location The site covering approximately 1.2 acres consists of a large single storey industrial building along with an agricultural barn, to the North and West of the building are existing areas ...
An All Too Rare Opportunity To Purchase A Pair Of Residential Building Plots With Full Planning Consent For The Construction Of Two Architect-Designed Bespoke Semi-Detached Four Bedroomed Homes Each With Accommodation Extending To Over 2500 Sq. Ft And Set In Nearly Half An Acre Of Woodland In A P...
'BUILDING PLOT FOR TWO RESIDENTIAL DWELLINGS, SUBJECT TO REINSTATEMENT OF PLANNING PERMISSION' This plot had planning permission granted on 15/10/2015 for a detached two storey house, a detached bungalow and a pair of garages. The planning permission has now lapsed and will need r...
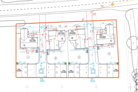
*Exceptional Residential Development Opportunity in the Worcestershire Countryside* Upper Moor, Pershore | Planning Approved for Four Detached Dwellings An exciting opportunity to acquire a prime freehold development site extending to approximately 0.55 acres of level pasture la...
Development Opportunity with Granted Planning Permission - An exciting chance to acquire a prime plot of land with full planning permission approved for the construction of two detached, five-bedroom homes (approx. 203 sqm each). Situated in the desirable semi-rural village of Stoke Prior, Bromsg...
Asking Price £400,000 RESIDENTIAL DEVELOPMENT OPPORTUNITY. Full Planning Permission has previously been granted for the erection of 8 residential town houses on a sloping site currently used for carparking. The area is a mixed residential/commercial property, and this development site enabl...
An Interesting Opportunity To Purchase A Building Plot With Full Permission For The Erection Of A Substantial Detached Property Set Over Three Floors With An Estimated Size In Excess Of 2700 Square Foot In A Prime Location Within The Great Malvern Conservation Area
A wonderful opportunity to purchase this sizeable plot with approved planning permission for the construction of a detached property. This is a unique chance to acquire a 0.45-acre plot situated within the delightful village of Great Witley. The approved planning permission is for a detached hom...
A rare opportunity to acquire a building plot with full detailed planning in the sought after area of Webheath. The good size plot offers planning permission for a detached two storey, four bedroom house with internal accommodation of approximately 2080 sqft with additional detached doub...































