Pubs For Sale in Yorkshire
Paid partnerships can play a role in listing order
CLOSED SPORTS BAR AND GRILL 40+ screens, shuffleboard, pool tables and darts area Two bar areas over two floors plus mezzanine Fitted and equipped with no expense spared The whole premises has a capacity of 450 Weekly turnover, prior to closure £10,000 REF 590920. Lease, Fixtures and Fittings ...
BAR AND RESTAURANT Heart of the city’s entertainment district Highly popular bar and restaurant Beautifully designed and furbished Available freehold or on a new lease Weekly turnover - details to follow. REF 591116. EPC Band E. Business £150,000. Doncaster
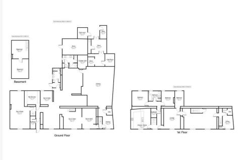
Free of tie leasehold public house within a mid-terrace four-story property under a pitched roof with single story extension to the rear. This is a well-fitted ale house utilising the ground floor areas and catering for a mixture of tourist, regular and circuit trade. Sales are heavily wet driven...
MEDITERRANEAN RESTAURANT AND BAR Prime trading position within a bustling township Operated primarily by staff due to our clients other business interests Fully refurbished throughout with no expense spared Trades in very limited hours opening at 3pm daily Weekly turnover £4,000 REF 590903. E...
BAR Prominent position, close proximity to a variety of popular bars and eateries Trading over six days with relatively straightforward operating hours Reluctant sale, prompted solely by ill health 60 covers over two floors plus 16 external Weekly turnover £4,000 to £5,000 REF 591357. EPC band ...
PUBLIC HOUSE Benefits from strong matchday trade and consistent local patronage Currently run entirely by staff due to the owners’ other business interests Scope to expand the food offering beyond matchdays Expansive beer garden, partially covered, featuring a second bar Weekly turnover £6,000 ...
BAR AND CRAFT BEER SHOP 38+ Covers Commanding main road position with easy parking Showing adjusted net profits of £48,138 to April 2024 Premises held on lease and are arranged over three floors Annual turnover £156,696 REF 590783. EPC Band A. Business £70,000 Leeds
PUBLIC HOUSE Enjoying spectacular views across the Aire Valley Retirement sale after eight years Scope for new owners to extend opening hours Four bedroom family accommodation Weekly turnover £5,000 REF 590843. EPC Band D. Business £59,950 Bradley Village between Skipton & Keighley
A historic end of terrace two storey property with colour washed elevations under a pitched tiled roof. The ground floor accommodates the main trading spaces, which are served by a central bar server to the public bar and restaurant areas. This is fitted in a traditional country inn style and o...
BAR Prime location with excellent visibility and footfall Stylish, contemporary interior with a warm, welcoming atmosphere Opens only for private events and overflow trade Ideal for daytime cafe trade and potential evening dining / bar service REF 591322. EPC Band B. Business £50,000 Huddersfield
ESTABLISHED AND POPULAR SPORTS BAR Prime location in the heart of Ilkley Adjusted net profit exceeding £100,000 (GP 76%) Fantastically well-presented throughout Superb events and function space with outdoor terrace Weekly turnover £6,000 to £7,000 REF 590761. EPC Band C. Business £49,950 Ilkley
FREE OF TIE BAR (FOUR DAYS PER WEEK) Run Entirely By Staff Good Sized Seating Area with a Bespoke Bar Excellent Margins – VIEWING IS A MUST MASSIVE POTENTIAL HERE TO DO SO MUCH MORE Weekly Turnover £2,500 REF 581733. EPC Band E. Business £45,000 Bradford
IDYLLIC VILLAGE PUB (FREE OF TIE) Attractive and affluent village Extensively refurbished recently Rapidly increasing takings Self-contained three bedroom accommodation Weekly Turnover £7,000 to £7,500 REF 590498. EPC Band B. Business £44,995 Barnsley