Land For Sale in Caerphilly (County of)
Situation The property is situated in the village of Markham, Blackwood. The area offers a blend of rural charm and modern convenience, with scenic countryside views, excellent road links, and easy access to local amenities, schools, and leisure facilities. Its proximity to the A467 and A4048 m...
Guide Price £700,000 -£750,000 Planning Application No. (24/0025/OUT) A fantastic opportunity to purchase a plot of land with outline planning with "Full Reserved Matters" for 17 dwellings, comprising of Two four bedroom dwellings, Nine two bedroom apartments and six one bedroom apar...
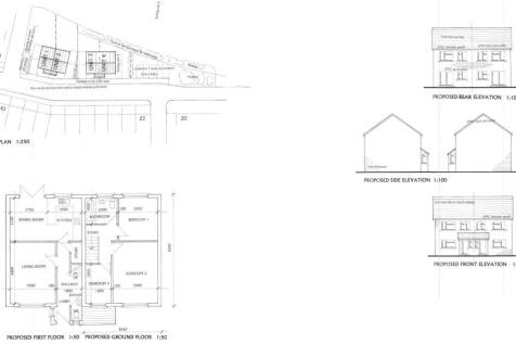
**LAND WITH PLANNING PERMISSION** An exciting opportunity to purchase a vacant and level plot of land with planning in place for 3x four bedroom and 1x five bedroom properties with gardens parking. Get in touch to arrange a site visit or to get more information.
DEVELOPMENT OPPORTUNITY PLOT OF LAND SITUATED IN THE SEMI RURAL LOCATION OF ARGOED CUL DE SAC LOCATION THE PLOT IS FULLY SERVICED DIRECT ROAD ACCESS OUTLINE PLANING FOR A SINGLE DETACHED DWELLING THE OUTLINED PLANING HAS NOW EXPIRED IF A PERSPECTIVE PURCHASER WAS CONCERNED WITH REFERENCE T...
DEVELOPMENT OPPORTUNITY PLOT OF LAND SITUATED IN THE SEMI RURAL LOCATION OF ARGOED CUL DE SAC LOCATION THE PLOT IS FULLY SERVICED DIRECT ROAD ACCESS OUTLINE PLANING FOR A SINGLE DETACHED DWELLING THE OUTLINED PLANING HAS NOW EXPIRED IF A PERSPECTIVE PURCHASER WAS CONCERNED WITH REFERENCE T...
Apex Estate Agents are delighted to present this generously sized building plot for sale, ideally situated in a prime location just a stone's throw from village shops, schools, and essential amenities. We are happy to provide further documentation upon request.
FOR SALE BY ONLINE AUCTION - Lot 56 - Multi-Site building plot; ONLINE AUCTION from 16th DECEMBER-18th DECEMBER This multi-site development plot has outline planning permission for 11 dwellings - 5 detached and 6 semi-detached houses. Situated in a popular residential area the plot is ...
**DEVELOPMENT BUILDING PLOT** Fantastic development opportunity with planning permission for detached 4-bedroom house. The development has been Initiated with the seller already undertaken some of the earthworks providing a new buyer a head start with the development process.


































































