Properties For Sale in Coldham's Common, Cambridge, Cambridgeshire
A rarely available opportunity to purchase a pair of semi detached licensed houses of multiple occupation on the southern side of the city. Available to investment purchasers only, and sold subject to existing tenancies, these properties yield an annual rental income of approx. £90,000 per a...
An established end-of-terrace townhouse offering exceptionally versatile and well-proportioned accommodation arranged over three floors. The property features a stylish, recently fitted open plan kitchen/dining room and a private rear garden, all set in a highly convenient yet tucked-away positio...
A well-proportioned Victorian semi-detached home, set opposite Vinery Road Recreation Ground and arranged over three floors, offering flexible living space with two reception rooms, two bedrooms to the first floor and a loft room to the second floor. Courtyard and an additional extensive lawned a...
Beautifully updated and improved three-bedroom home in central Cambridge, blending period charm with stylish modern interiors. Featuring a stunning kitchen/dining room and a landscaped garden, it’s perfectly located close to the city centre, schools and transport links.
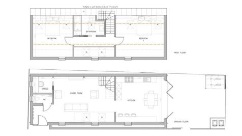
Located in the heart of CB1 and just a short walk from vibrant Mill Road, this spacious four-bedroom home presents an excellent opportunity for a family home or investment. Currently let, the property offers generous accommodation across four reception rooms, two bathrooms, and a large rear garde...
A substantial, much improved and extended, mid-terrace townhouse, providing versatile and cleverly designed accommodation, arranged over two floors. The property also has the benefit of a generous and long rear garden and block paved, courtyard-style area to front, providing off-street parking an...
Cowper Road is a fine 1930's semi-detached family house situated in a popular location, with potential for further development and generous rear garden. NO CHAIN. The house offers entrance hall, sitting room, dining room, kitchen. Landing 3 bedrooms and bathroom. Gas fired central heating and dou...
This well-presented three-storey, four-bedroom townhouse is situated in one of Cambridge’s most desirable locations, just off the ever-popular Mill Road, offering excellent access to the city centre, mainline railway station, and a host of local amenities. The property provides versatile and cont...
We are delighted to offer for sale this attractive Victorian terraced home, ideally situated on a popular residential road just off the vibrant and diverse Mill Road. The property is within easy walking distance of the railway station and Cambridge city centre. Internal viewing recommended.











































































































































