Auction Properties For Sale in Derby, Derbyshire
** FOR SALE BY AUCTION ON THURSDAY 26TH MARCH ** NO UPWARD CHAIN ** This spacious two-double bedroom traditional terrace property is ideally located to offer excellent to the city centre and is within an area that is well renowned for its buy-to-let and student rental potential. Offering two gene...
Please Quote Reference RW1490 Welcome to Stockbrook Road in Derby, this impressive mid-terrace house presents a remarkable investment opportunity for discerning buyers. Spanning an expansive 2,478 square feet, this property boasts a generous layout featuring ten well-appointed bedrooms,...
For sale by Online Auction - An excellent opportunity to acquire a three-bedroom semi-detached property situated in the popular and well-established residential area of Chaddesden, Derby. The property offers generous and versatile accommodation arranged over two floors and presents clear s...
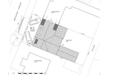
**AUCTION PROPERTY** BTG Eddisons Property Auctions - Auction Date: 26/03/2026 9am. A traditional three bedroomed semi-detached home occupying a larger-than-average plot, offering immense potential. The property benefits from mature side and rear gardens, off-road parking, and represents an ex...
Discover the spacious, house-like feel of this unique two-bedroom duplex apartment, set in a prime location near Littleover village, Derby city centre, and the Royal Hospital. Offering the perfect blend of comfort, style, and convenience - Schedule a viewing today!




















