Properties For Sale in Herstmonceux, Hailsham, East Sussex
An Enchanting Country Escape with timeless elegance and modern comforts nestled on the peaceful outskirts of the picturesque village of Herstmonceux. This Grade II Listed detached country house is a rare gem set over three floors, perfectly blending historic charm with contemporary living, the pr...
**Guide Price £1,200,000 - £1,300,000** An imposing and distinguished detached house dating from 1938 of 5,248 sq ft, including a self-contained annexe, situated on high ground, commanding outstanding far-reaching southerly views to the sea, in a semi-rural location, privately se...
Taylors Barn offers a rare opportunity to acquire a substantial, architect-designed five-bedroom family home in the sought-after village of Herstmonceux. Built around four years ago, this bespoke three-storey combining the charm of a traditional Sussex barn with modern comfort and efficiency. The...
GUIDE PRICE: £899,995 • A luxury detached bespoke eco modern luxury chalet bungalow that also comes with a luxury detached holiday bungalow with a combined 2.4 acres (to be verified). • Located in the heart of the Herstmonceux village within its own attractiv...
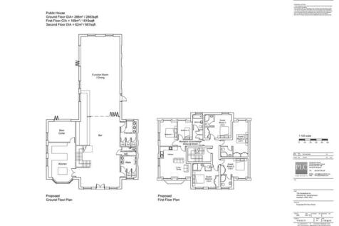
Lambert & Foster are delighted to bring to market this substantial Grade II Listed house, the ground floor of which is currently being used a fine dining restaurant, in an ideal location in the sought-after village of Herstmonceux, East Sussex. The property, which is set in approximately 0.75 ...
GUIDE PRICE: £770,000 • A luxury detached bespoke eco modern luxury chalet bungalow with generous sized gardens • Located in the heart of the Herstmonceux village within its own attractive park style gardens of 0.69 of an acre • Option to pur...
A Bespoke Individually Designed Four-Bedroom Detached Home in Herstmonceux. This stunning new-build detached house offers a perfect blend of modern design, energy efficiency, and versatile family living. Thoughtfully planned with spacious interiors and a south-facing garden, the home provides an ...
Positioned along a quiet lane in the highly sought-after village of Herstmonceux, this spacious and well-appointed three-bedroom semi-detached home offers generous accommodation arranged over three floors. Ideal for families or a couple, it provides a fantastic opportunity to create a comfortable...
A brand new four bedroom detached family home on the edge of the village of Herstmonceux in the heart of East Sussex. Farm Field Place is a small development of 21 private family homes built by Whitehall Homes. *Show Home open Friday to Saturday 10am - 4pm*
3D Virtual Tour I Stunning Detached Bungalow I High Quality Finishes Throughout I Spacious Lounge I Modern Kitchen/Dining Room I Two Double Bedrooms I Bathroom/WC I Garage I Workshop I Viewing Advised I Potential To Extend STPP I Stevens and Carter are delighted to bring to the market t...
Welcome to this delightful Character property situated in Windmill Hill, just outside of the popular village of Herstmonceux and discover the charm of this captivating semi-detached cottage, dating back to circa 1650. Seamlessly blending historical character with modern comforts and comprising f...
Charming Country Cottage with surrounding countryside views and modern comforts, nestled in the heart of the sought-after village of Herstmonceux. This beautifully presented detached two-bedroom cottage offers a unique blend of rustic charm and modern living. With its striking white-clad and bric...
Nestled in the charming village of Herstmonceux, this modern semi-detached house on Gardner Street offers a delightful blend of contemporary living and rural charm. Spanning an impressive 1,248 square feet, the property is thoughtfully arranged over three floors, providing ample space for familie...
A brand new three bedroom detached family home on the edge of the village of Herstmonceux in the heart of East Sussex. Farm Field Place is a small development of 21 private family homes built by Whitehall Homes. *Show Home open Friday to Saturday 10am - 4pm*
Streets are delighted to offer this stunning conversion. This three double bedroom link detached house has been converted to a very high standard. There is a large open plan living space and integrated kitchen appliances. This is a great location, in a quiet mews. Hurry to avoid disappointment.<...
A brand new three bedroom family home on the edge of the village of Herstmonceux in the heart of East Sussex. Farm Field Place is a small development of 21 private family homes built by Whitehall Homes. *Show Home open Friday to Sunday 10am - 4pm*
This charming end of terrace family home is set within a highly sought-after village location and offers beautifully presented accommodation throughout. The light and welcoming sitting room features a striking fireplace, now fitted with a new log burner and flue, creating a perfect focal...
Charming 3-Bedroom Mews Style Home perfectly situated in Windmill Hill just outside of the ever-popular village of Herstmonceux. This beautifully presented three double bedroom mews house offers an ideal opportunity for first-time buyers, growing families or as a fabulous low maintenance ‘lock u...

























































































































