Land For Sale in South London
Freehold Land Sale •The site comprises 3 buildings and is currently occupied by the Queens Elizabeth Foundation, a charity supporting individuals with brain injuries or neurological needs•The site is located within the Green Belt, an Archaeological Priority Area and si...
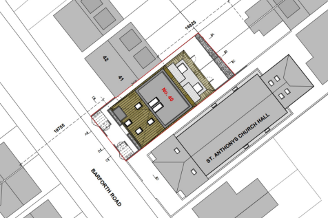
A very interesting and rarely available large storage/factory or even development site has come to the market. This area is tucked up just behind Tooting high street and is accessed via a quiet side road. This entrance is large enough to accommodate good sized vehicles and is currently mixed use...
A centrally located site offering potential for a range of residential uses, including traditional residential units, co-living and PBSA, with excellent connectivity to Central London. An excellent opportunity to acquire an allocated site within the Old Kent Road Opportunity Area, one of London’...
Golden opportunity! Bensons are the sole selling agents of this large freehold building which is two separate commercial premises. One unit is currently let producing £35,000 rental income per annum and the other is a supermarket with approximate takings of £30,000 per week which the in...
Winkworth Surbiton is delighted to present an exceptional and rarely available opportunity to acquire the full freehold of a substantial block of apartments located on Ewell Road, just moments from Surbiton’s vibrant town centre and transport links. This impressive property compr...
PLOT A - TWO PLANNING CONSENTS AVAILABLE – AN EXCEPTIONAL PLOT IN CHISLEHURST Choose which consent best suits your vision and create a truly spectacular family home in one of Chislehurst’s most coveted locations. Situated on the prestigious Cricket Ground Road, this rare plot combines...
James Chiltern are delighted to present this rare opportunity to acquire a freehold block comprising six well-proportioned two-bedroom flats, together with six garages and additional parking spaces, offering strong income generation and significant future potential. The property consists...
PLOT B - TWO PLANNING CONSENTS AVAILABLE – AN EXCEPTIONAL PLOT IN CHISLEHURST Choose which consent best suits your vision and create a truly spectacular family home in one of Chislehurst’s most coveted locations. Situated on the prestigious Cricket Ground Road, this rare plot combines...
**Asking Price £1,850,000** Having been in the same family since 1898, Westwood Property Services are delighted to offer for sale this large commercial/residential opportunity. Ideally located for Sidcup Train Station the site includes a two storey Victorian building which is in need of repair, y...
A rare opportunity to acquire a vacant plot on Kingston Hill offering excellent potential for development. The site previously had planning permission granted for two substantial semi-detached houses of approximately 3,500 sq.ft. each and may lend itself to a similar scheme subject to planning. F...











