Properties For Sale in Stithians, Truro, Cornwall
Wonderfully atmospheric with main house, cottage, beautiful gardens & stunning woodland with high environmental appeal – total c. 3.41 acres. 3 bed house. I bed separate cott. Double Garage. Gardens. Managed woods - wide variety of flora & fauna. Wildlife pond. Workshop. EPC Rating: D 3.4 Acres
Rare countryside property with detached studio annexe, beautiful gardens, stable yard, garage, workshop & 1.6-acre field. Spacious interiors, oak floors, open plan kitchen/diner, 3 double bedrooms, garden seating areas, stone walls, Summerhouse annexe, panoramic views. Blissful rural location nea...
A substantially extended and renovated link-detached dormer bungalow now offering a truly superb four bedroom home in this popular village location. Front and rear gardens, driveway parking and stunning countryside views. An opportunity not to be missed!
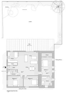
To be sold for the first time in almost 25 years; an incredibly rare opportunity to acquire a sizeable, Grade II Listed 3 bedroom residence, forming part of the historic Crellow Estate, believed to date back to early-mid 19th centenary. 'Harefield' offers character features such as high ceilings,...
'Pretty Porch Cottage' is a delightful Mellow Stone character terraced property located within the popular village of Stithians. As you would expect from a property of this period if offers a wealth of charm and features with the added benefit of enjoying a beautiful rural outlook from the rea...
Situated within the rural village of Stithians is this very well presented semi-detached family home, located in a non-estate position. Believed to have been constructed in 2005, the property is ideally located for access to the local amenities of the village yet is within reasonable travellin...
A SIGNIFICANTLY UPDATED charming three bedroom terraced character cottage with cosy wood burning stove, located a short stroll from the centre of STITHIANS village. Delightful sunny garden and parking. Spacious open plan interior, UPVC double glazing and gas central heating.
This delightful mid-terrace double fronted cottage is set in the heart of Stithians, a stone's throw from the village shop, Primary School and Public House. On entering the property you come into the lounge/diner which has an inglenook fireplace at each end with a beamed ceiling and stairs lea...

















































































































































































































































































































































































