Detached Houses For Sale in Stubbington, Fareham, Hampshire
The Charnwood Corner features a living room with French doors leading into the garden, an open-plan kitchen/breakfast room and a utility room, storage cupboards and downstairs WC. Upstairs, there are three bedrooms - bedroom one is en suite - a bathroom and further storage cupboards.
A fabulous contemporary home of 6652 sq ft with one of the best sea views in Southern England that has adaptable accommodation over 3 floors with every room at the front of the home having sea view across the Solent to the Isle of Wight. This is where home and lifestyle meet for all the family.
* A rare opportunity to acquire this magnificent, detached residence situated in one of the areas most desirable locations and set within a private gated development of executive homes. This impressive and spacious property enjoys an elevated position boasting breathtaking views of the Solent, Is...
Positioned in one of Hill Head´s most coveted coastal settings, this exceptional five-bedroom residence offers a rare opportunity to enjoy uninterrupted, panoramic views across the Solent. A truly unique home, it blends generous living space with exquisitely landscaped gardens, delivering a ...
* Tregarth is an imposing and individual residence positioned in one of the areas most desirable roads in Hill Head. The property enjoys a tranquil feel with its mature surroundings and attractive grounds whilst having the benefit of the foreshore at the end of the road. The substantial living ac...
Perfectly positioned within a prestigious crescent in the heart of Hill Head, this architect-designed coastal residence combines exceptional versatility with contemporary living, just moments from the beach. Extending to approximately 2,789 sq ft, the property is complemented by a superb 483 sq f...
Situated in an extremely sought after location with stunning views across the Solent beyond to the Isle of Wight, a spectacular open plan layout based on a Scandinavian design with many desirable features, this really is a wow property, with opportunities to modernise and extend subject to planni...
* This beautifully presented character residence is situated in the highly regarded Hill Head area and is within close proximity to the foreshore. The property has been tastefully modernised and refurbished by the current owners and now provides elegant and versatile living accommodation. Outsid...
Guide Price £850,000 to £900,000. We are delighted to offer for sale this beautiful detached property, built and formerly used as a family home for over 20 years before being converted to a Guest House, which is situated on the ever popular Hill Head Road with beautiful views across the...
A versatile detached residence with enclosed annexe and favourably situated in one of Hill Head's premier requested roads. The property with its five bedrooms and three reception rooms will appeal to many demographics due to its versatility, with potential to reconfigure the layout if required. C...
*** NO ONWARD CHAIN*** An exciting opportunity to acquire an absolutely stunning Elizabethan residence dating back to the1600’s, extending to over 1700 square feet of characterful accommodation, situated in an extremely sought after location within a premier road in Stubbington,
*** PURCHASER INCENTIVE AVAILABLE ON THIS PROPERTY, PLEASE CONTACT US FOR DETAILS *** Plot 2 The Lapwing is an attractive 4 bedroom detached family home offering 1,677 sq ft of accommodation with kitchen/dining room, lounge, study, garage and parking for at least 4 cars, viewing is highl...
Plot 2 The Lapwing is a spacious 4-bed detached home (1,677 sq ft) with a 29’ kitchen/diner, NEFF appliances, dedicated STUDY, utility, en-suite to main, GARAGE, parking & garden. Family-friendly, high-spec living with a 10-year warranty in a FANTASTIC location.PART EXCHANGE AVAILABLE
Situated at the end of a quiet cul de sac on coveted Marks Tey Road, this beautifully presented detached residence offers the perfect blend of comfort, character, and practicality. The home is set on a generously sized plot, featuring a broad driveway with ample parking an...
Situated in a prominent position, this five bedroom detached residence although requiring updating offers bags of potential. The property has an external heated pool (requires new boiler), pool/entertainment room and double garage. Inside the property has Lounge open to Dining room/ Kitchen/Break...
*** PURCHASER INCENTIVE AVAILABLE ON THIS PROPERTY, PLEASE CONTACT US FOR DETAILS *** Now ready for occupation, Plot 5 The Lapwing is an attractive 4 bedroom detached family home offering 1,677 sq ft of accommodation with car port and driveway parking built to a high specification throu...
360 virtual tour available! A five/Six bedroom bedroom detached house that is in our opinion impeccably finished to the very highest, luxurious standard by a local builder. The property has been completely modernised and improved including a re-wire, new heating system and thoughtful extensions...
We are pleased to bring to market this beautiful family home, tucked away in a quiet cul-de-sac, within walking distance to Stubbington Village. In great school catchments, this detached home offers spacious accommodation with seamless flow, practicality and potential for the new owners to put th...
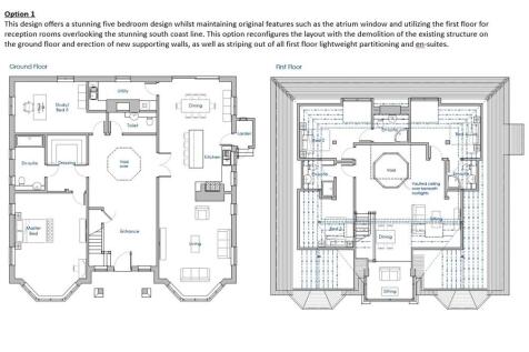
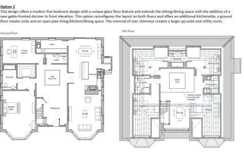
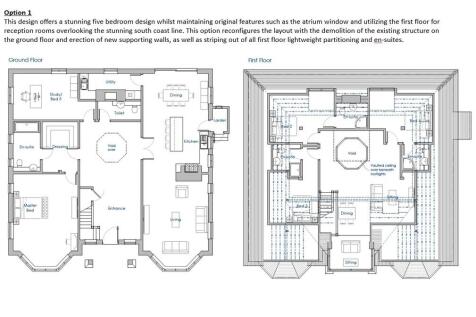
Positioned just a stone's throw from the beach and within easy walking distance of Stubbington Village, this four-bedroom detached home sits on a generous plot and offers an exciting opportunity to create a truly stunning coastal residence. The ground floor accommodation is spacious and versatile...
BEAUTIFUL GARDENS! A very well presented, extended detached chalet style three bedroom house, situated in an enviable Hill Head location minutes from the seafront and offering versatile flexible accommodation. The property offers En-Suite facilities to two of the bedrooms with the addition of gro...


























































































































































































































































































































































































































































































































































































































































































































