Terraced Houses To Rent in Redbridge (London Borough)
GREAT LOCATION - discover this delightful two bedroom house for rent in Newbury Park. With a low maintenance garden, convenient parking this property offers a comfortable and convenient lifestyle - OAKS PARK SCHOOL CATCHMENT - this residence is an exceptional opportunity for a vibrant lifestyle.
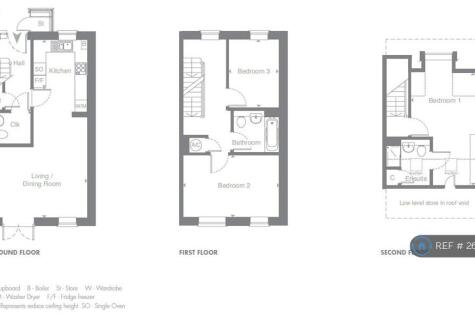
Modern 5-Bedroom, 3-Bathroom Family Home – To Let (RM6 area) Step into comfort and contemporary charm with this beautifully presented house in the sought-after Chadwell Heath Lane, RM6. The proper... ** Property Reference: 2687342 **
Modern 3-bedroom home near Seven Kings and Barking, featuring a spacious reception, modern kitchen, family bathroom, off-street parking, and a good-size rear garden. Close to stations, schools, and local amenities. Ideal for families or professionals. Contact ESTATE ARK to view.
Edward Chase is delighted to present to the residential lettings market this amazing 3-bedroom, 2 reception house in Seven Kings, Ilford. This property is located short walk to Seven Kings Station (Elizabeth Line) within the Isaac Academy catchment area making this house a superb option for famil...
Spacious 4-Bedroom Family Home to Rent – Thornton Road, Ilford, IG1 Located on the sought-after Thornton Road in the heart of Ilford, this generous four-bedroom family home offers exceptional space, comfort and convenience. Perfectly positioned for commuters and families alike, the property bene...
A clean and well presented three bedroom home in a convenient location. The property includes a good-sized living room, modern kitchen, family bathroom, and a private garden. Close to local shops, schools, and transport links. Available now. Early viewing recommended.
Introducing this beautifully presented four-bedroom family home located on the highly sought-after Cavenham Gardens, IG1. Situated in a quiet residential neighbourhood just moments from Ilford’s excellent local amenities, this property offers generous living space, modern interiors, and superb co...
Well-presented 3-bedroom terraced home in a popular residential area. Spacious lounge, extended kitchen, 2 double bedrooms with fitted wardrobes, single bedroom, family bathroom. Good-sized private garden with detached outbuilding. Off-street driveway parking.




















































