Land For Sale in Forest of Dean
A rare opportunity to acquire a prime development plot in a highly regarded elevated rural setting, with planning permission granted (P240309/F) for the construction of two substantial contemporary detached four-bedroom houses of approximately 1,969 sq ft each
**For Sale By Public Auction 12th February 2026 09:30 AM To inspect the legal documents for this property go to our website to download the legal pack** Land and Roadways Measuring Approximately 3.68 Acres / 14,892 sq m / 160,296 sq ft Freehold Guide Price = &...
The Land at Station Street, Cinderford offers an exciting potential development opportunity for a residential led housing scheme/C2/commercial on a 9.29 acre allocated development site subject to planning permission being secured. Subject to Planning/Option/Promotion Agreement Proposals are in...
The development site is a former agricultural farmstead set in open countryside with full planning permission for four barn conversions and four new dwellings. Two four bed building plots, two large three bed semi plots, about 1000 sq.m of barn conversion space, four bed Farmhouse needing renovat...
Set in the glorious South Herefordshire countryside, this well-managed smallholding has been cared for by the same family for over two decades. At its centre stands a spacious detached dormer bungalow, built in 1996 and subject to an Agricultural Occupancy Condition, accompanied by a useful range...
The development site is a former agricultural farmstead set in open countryside. Full planning permission for four barn conversions and four new dwellings. Two four bed plots. two large three Bed semi Plots, about 1000 sq.m of barn conversion space, Farmhouse needing renovation also available sep...
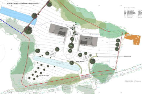
An opportunity to acquire a substantial three storey commercial building with a large amount of surrounding land, formally holding outline planning consent for the erection of two detached and a pair of semi-detached dwellings. (planning permission P0671/11/OUT).
A FANTASTIC OPPORTUNITY TO ACQUIRE A BARN (originally built in 2016) of approximately 8,000 square feet with FULL PLANNING PERMISSION GRANTED TO CONVERT INTO TWO SPACIOUS LUXURY HOMES, one with FIVE BEDROOMS and the other with FOUR BEDROOMS, nestled in GLORIOUS GLOUCESTERSHIRE COUNTRYSIDE, enjoyi...
An excellent opportunity to acquire an enclosed, part-walled paddock with development potential, subject to the necessary planning consents. Situated in a desirable semi-rural location, the land offers easy access to Ross-on-Wye on foot or by bicycle. The current owners are open to discussions re...
The Barley House comprises an appealing rural smallholding development package with a traditional stone barn with implemented and started planning consent to convert to a three-bedroom residence, an excellent portal framed outbuilding, a mobile home, three further traditional stone buildings a...
This development plot, measuring approximately half an acre, has planning permission for seven houses, each with its own garden and off-road parking. There would be two pairs of semi-detached properties and a terrace of three homes, all set within a well-appointed village in the Forest of Dean.
A rare opportunity to deliver two exceptional contemporary homes in one of Walford's most sought after elevated rural settings. A prime development plot with full planning consent (Ref. P240309/F) for two substantial four-bedroom detached properties, each extending to approximately 1,969 sq ft.
A rare opportunity to acquire a prime development plot in a highly regarded elevated rural setting, with planning permission granted (P240309/F) for the construction of two substantial contemporary detached four-bedroom houses of approximately 1,969 sq ft each
A rare and exciting development opportunity, this building plot comes with full planning permission granted for the construction of three four-bedroom detached homes, each with a double garage. With an estimated Gross Development Value (GDV) of £1.8–£1.9 million, this site pr...
Tuck Mill Barn Tuck Mill Lane Marstow HR9 6EH Summary of features: Barn with lapsed planning consent for a substantial 4-bedroom dwelling Chalet with planning consent for a replacement 2-bedroom dwelling Set in approximately 17.56 acres Pasture land and woodland...
An Exciting Opportunity To Acquire A Development Site With Full Planning Consent (Ref. P251634/F) For Three Detached Three Bedroom Homes, Each Offering Over 2,000 Sq Ft Of Spacious Accommodation With Detached Double Garages. The Scheme Provides An Excellent Chance To Create High-Quality Family...
The Barley House Lot 1 comprises an appealing rural smallholding development package with a traditional stone barn with implemented and started planning consent to convert to a three-bedroom residence, an excellent portal framed outbuilding, a mobile home, a further traditional stone buildings...
DEVELOPMENT PROJECT FOR LARGE FAMILY HOME & DETACHED ANNEX - Large derelict house, cottage and stone barnsin approximately three quarters of an acre of ground. Peaceful rural location. Superb far reaching views. Full planning permission (lapsed 2014) granted for replacement 6 bedroom dwelling...
** FOUR BUILDING PLOTS with FULL PLANNING PERMISSION ** Murdock & Wasley Estate Agents are delighted to bring to the open market a superb opportunity to acquire four prime building plots in the sought-after village of Longhope. These plots come with approved planning permission ...





