Commercial Properties To Let in Lincolnshire
TES Property are delighted to present an exciting commercial development extending to approximately 100,000 sq.ft overall, with approximately 60,000 sq.ft of high-quality commercial space. The scheme will comprise up to 33 high-specification industrial units across two phases with Phase 1 deliver...
Walshe's Property are proud to offer you this office space for rent on Belton Grange Farm in Crowle.The property offers a 206 sq ft office space & contains power connections with a personal entrance. The site is fully secure with gated access between 8am-6pm along with CCTV throughout.Please note...
TO LET - SUBSTANTIAL & VERSATILE INDUSTRIAL PREMISES Versatile Industrial Premises with extensive external storage land on the edge of Woodhall Spa with a prominent roadside position. Offering clear span workspace within two modern purpose-built workshop/storage buildings, with ancilla...
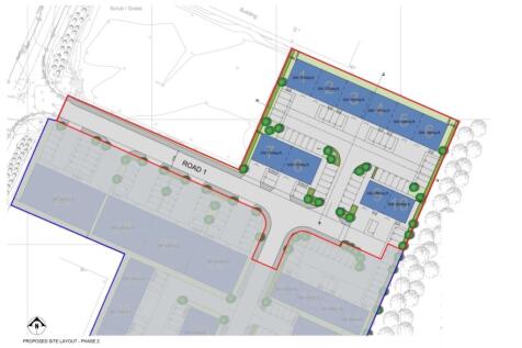
An excellent opportunity for a tenant to acquire these brand-new 2-storey light industrial units with offices above in phase 1 and larger single-storey units in phase 2. They are suitable for trade counter retail, industrial, warehousing, and commercial use. Stonebridge Business Park com...
Caravan & Vehicle Storage. All year round undercover and outdoor storage. Secure spacious site in a pleasant setting. 24 Hour Onsite CCTV. Practical opening hours with flexible access. Family run friendly business. Long established. Onsite caravan cleaning and servicing available.
Orion Business Center provides a range of offices and services that are tailored to the individual needs. Office sizes range from 1 person, up to 8/9 people, and everything in between. Prices include all services, furniture, cleaning, maintenance and our virtual reception and virtual office services
Walshe's Property are proud to offer you this commercial property for rent in Eastoft, North Lincolnshire. The property offers a 6500 sq ft commercial space, suitable for light industrial or storage purposes with two roller doors and a separate personal door. Additionally there is also a mess roo...
The property comprises a ground floor retail premises within a large residential block of apartments. The property provides open plan space with suspended ceilings with LED fitted lighting; electric wall heaters, disabled WC and alarm system. The property can be split into 2 or 3 retails...
Modern industrial unit providing workshop and office accommodation, extending to approximately 130.75 sq.m (1,407 sq.ft), located within Fairfield Industrial Estate and benefitting from 5.62m eaves height, 3-phase electricity, air source heating, available from 1st April 2026.
An excellent opportunity to take a lease on this superb office space situated within 1.5 miles of the town centre. The suite offers high quality ground floor office space including 4 offices, board room, kitchen, stores and WC. The property benefits from 2 parking spaces plus ample area ...
An excellent opportunity for owner-occupiers or investors to acquire these brand-new high-spec light industrial units. They are suitable for trade counter retail, industrial, warehousing, and commercial use. Stonebridge Business Park comprises 4 acres of land presently being developed in...
An excellent opportunity for owner-occupiers or investors to acquire these brand-new high-spec light industrial units. They are suitable for trade counter retail, industrial, warehousing, and commercial use. Stonebridge Business Park comprises 4 acres of land presently being developed into a comm...
Walshe's Property are proud to offer you this office space for rent on Normanby Grange Farm, Normanby on the outskirts of Scunthorpe.The large office, boasting over 800 sq ft of floor space offers a male and female toilet, kitchenette, two large open office spaces along with two private office/me...
An excellent opportunity for a tenant to acquire these brand-new 2-storey light industrial units with offices above in phase 1 and larger single-storey units in phase 2. They are suitable for trade counter retail, industrial, warehousing, and commercial use. Stonebridge Business Park com...