Properties For Sale in Brockfield Hall, York, North Yorkshire
Nestled in the charming village of Holtby, York, this delightful detached bungalow on Church Rise offers a unique opportunity for those seeking a peaceful retreat with stunning open countryside views. The property boasts four generously sized double bedrooms, providing ample space for family livi...
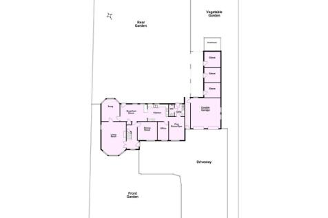
Welcome to Meadowville, proudly presented to the market by Ashtons Estate Agents. Located to the west of York, this is a truly unique and rare opportunity to acquire a substantial five-bedroom residence with an indoor swimming pool, along with an additional three-bedroom cottage, ideal for holid...
Located in the heart of the highly sought-after village of Warthill, just to the east of York, is this substantial and beautifully maintained detached bungalow set within exceptional gardens with an open aspect to the rear. The current owners have undertaken significant improvements to the house,...
Situated on Murton Way in a popular residential area to the east of York, this attractive and well-maintained four-bedroom detached family home sits on a generous plot and offers spacious accommodation with excellent access to the A64, outer ring road and York’s historic city centre. On ...
The Limes is a charming Grade II listed late 18th-century cottage, brimming with character and period features. Located in the highly sought-after village of Holtby, the property also includes a self-contained one-bedroom annexe, offering potential for guest accommodation or holiday letting (subj...
Positioned in the heart of Dunnington, this Grade II listed home has been the subject of a comprehensive and carefully considered refurbishment, resulting in a property that combines the character of its origins with a notably high standard of finish throughout.
A rare opportunity to acquire this well proportioned three bedroom home, set on one of the largest plots within this established development, having been the original show home and proudly owned by the same family for over 60 years. The property is entered via a front entrance hallway wi...
This beautifully extended four-bedroom bungalow in the heart of Dunnington offers the perfect balance of style, space and convenience. Positioned just a short stroll from the sports playing fields and village sports club, it sits in one of York’s most sought-after villages, blending a welcoming c...
Situated in the popular village of Murton, just outside York, this spacious and highly versatile three-bedroom home enjoys open views to the front and a private rear garden that is not overlooked, offering a wonderful sense of space and privacy. A welcoming porch leads into a generous en...
Nestled in the charming village of Holtby, York, this delightful detached bungalow on Church Rise offers a unique opportunity for those seeking a peaceful retreat with stunning open countryside views. The property boasts four generously sized double bedrooms, providing ample space for family livi...
Set within the highly sought after village of Dunnington, just east of York, is this beautifully presented detached home, positioned in one of the area’s most desirable residential settings. Dunnington is a picturesque and well served village, offering a range of local shops, popular eateries and...
This desirable three bedroom detached bungalow occupies an attractive corner plot in one of Dunnington’s most sought after locations, Manor Beeches. The village itself is perfectly located for quick access to the City of York and boasts a range of amenities including a school, pubs and s...
Tucked away at the end of a peaceful cul-de-sac in the ever-popular village of Dunnington, this beautifully presented two-bedroom bungalow is ideal for those seeking single-level living. The property offers generous living space, ample off-street parking, and a high-quality finish throughout.
A well-presented two-bedroom semi-detached bungalow offering practical single-storey living in the popular village of Murton. The property includes solar panels, a driveway with space for multiple vehicles, and a lawned rear garden with patio. The accommodation features a bright living r...























