Properties For Sale in Wormbridge Common, Hereford, Herefordshire
The Sudley is a three bedroom open plan home with the master bedroom having its own en-suite, two further bedrooms and a family bathroom. The Sudley also benefits from off road parking for 2 cars. Built around a courtyard setting of just 10 Homes by Bell Homes a family business renowned...
A Spectacular Landmark Barn Conversion of Scale and Distinction, with 5 Double Bedrooms, an Impressive Multi-Purpose Detached Annexe and 0.9 Acres of Beautiful Grounds – A One-of-a-Kind Lifestyle Property Offering Over 6,000 Sq. ft of Living Space, all set in the Coveted Village of Eaton...
Nestled in the charming village of Madley, Hereford, this remarkable Tudor-style detached house offers a unique blend of historical significance and modern family living. Originally an important farmhouse dating back to 1540, the property is steeped in character and history, surrounded by picture...
Positioned in the charming semi-rural area of Stoney Street, Madley, Hereford, this characterful Georgian detached house offers a splendid opportunity for those seeking spacious and flexible accommodation. With an impressive eight bedrooms and four well-appointed bathrooms, this property is ideal...
Spectacular Detached Property on an Exclusive Small Development | Four Bedrooms, Three Bathrooms | Double Garage & Driveway Parking | High Quality Finish Throughout | Trusted Local Developers | Located in the Popular Village of Madley
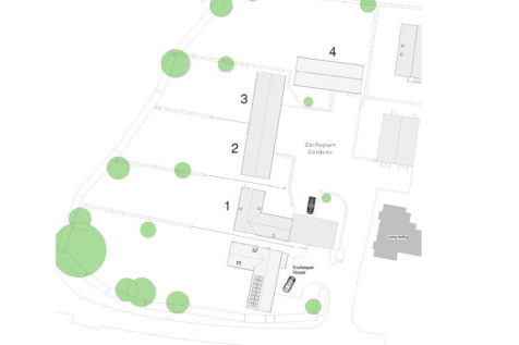
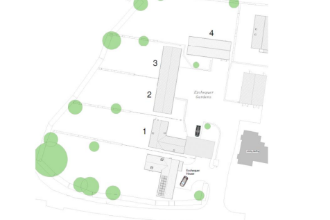
Welcome to Exchequer Gardens Constructed to an exacting standard by Buchanan Properties, this exciting development mixes traditional design with contemporary touches and enjoys a slightly elevated position with some fine views over the surrounding landscape. Offering plenty of light and ...
A stunning four bedroom double fronted home. The Highclere is ideal for those looking for their own home office. The spacious open plan kitchen/dining/living room are ideal for modern family life, with patio doors that open out to the garden. Upstairs the master bedroom has its ...
Welcome to Exchequer Gardens Constructed to an exacting standard by Buchanan Properties, this exciting development mixes traditional design with contemporary touches and enjoys a slightly elevated position with some fine views over the surrounding landscape. Offering plenty of light and ...
Only ONE remaining! Currently being constructed to a high specification, by the Award winning developer Perfection Homes, an exciting opportunity to purchase ‘off plan’ a contemporary, luxury 3/4 bedroom detached house. The property comprises; designer kitchen/family/dining room, u...
An attractive detached house, in a peaceful rural location just 2 miles from the city, with 4 bedrooms (1 ensuite), excellent living space, a detached double garage with studio over and a lovely garden. This impressive, detached property is located in a lovely rural, sylvan adjoining Bel...
This delightful detached village home is available on the market for the first time in nearly 50 years! Built in 1973, the property boasts an impressive 2,076 square feet of living area, making it an ideal family home or a serene retreat for those seeking a peaceful lifestyle. With the f...
LAST PLOT REMAINING - Evelina - Plot 7 a substantial detached house overlooking fields and local countryside with 4 bedrooms, en-suite/walk-in wardrobe, triple glazing, solar panels, air source heat pump, utility, single garage and enclosed garden. 10 year structural warranty.
Newly constructed detached property pleasantly located on a small development of just three properties, in the popular village of Eaton Bishop which lies close to the historic Golden Valley and the River Wye just six miles south-west of the Cathedral City of Hereford. Within Eaton Bishop...
***No onward chain*** An amazing opportunity to acquire this well presented deceptively spacious five bedroom property. Situated in a quiet and tranquil location. The property features five bedrooms, master bedroom with en-suite shower room, bedroom two with large balcony, a spacious living room...
Nestled in the popular village of Madley, Hereford, this delightful house offers a unique opportunity for those seeking a blend of rural living and potential development. With a generous plot of 2.5 acres, the property boasts a useful range of agricultural buildings and yard areas, presenting exc...
A STONE AND BRICK BUILT, DETACHED FARMHOUSE POSITIONED ON THE OUTSKIRTS OF THE VILLAGE OF MADLEY, STANDING IN APPROX. 3.13 ACRES OF GARDENS AND WOODLAND. ADJACENT IS A LISTED GRADE II, 15TH CENTURY CRUCK BARN WITH PLANNING PERMISSION GRANTED FOR A FOUR BED DWELLING AND ADDITIONAL OUTBUILDINGS. AD...
The Bletchley a modern four double bedroom family home built around a courtyard setting of only 10 Homes, built by Bell Homes a family business renowned for crafting high quality homes. The Bletchley offers a open plan kitchen/dining room, a large living room with patio doors to the gard...





























































































































































































