Land For Sale in Essex
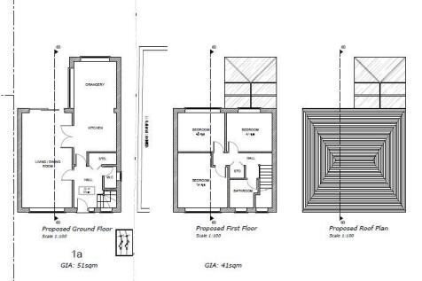
A rare opportunity to purchase this substantial building plot situated in a village location to the east of the City of Colchester and offering a plot of approximately 1 acre. The property is ready to be built and has planning permission granted by Tendring District Council under reference 22/016...
**Being sold via Secure Sale online bidding. Terms & Conditions apply** Exciting Opportunity: Two Apartments with Freeholds & Development Land (stpp) in Westcliff-on-Sea Prime Properties with Exceptional Investment and Development Potential with both apartments, freehold and land to s...
The site itself is mostly level and hard surfaced, with a right of way adjacent to the southwestern boundary in favour of the adjoining former railway workshops, an easement has been reserved to lay services from the main road through land adjacent to the former telephone exchange.
Garden land bounded by concrete post and timber panel fencing, and with vehicular access off Stanley Road North. The site is overgrown and has a dilapidated detached single garage and two timber sheds - please note it will be the buyer's responsibility to clear the contents of buildings as well a...
For sale via secure sale online bidding: terms and conditions apply. pleased to present an exceptional opportunity to acquire 25 sections of vacant freehold land, plus access ways, totalling over 4.5 acres. Situated just north of Nazeing Golf Club, this land offers significant potential for fu...
*For sale via secure sale online bidding: terms and conditions apply.* We are pleased to offer to auction this unique opportunity to acquire a freehold stable yard with land, offering approximately 445sqm of space, located in the sought-after area of Harwich Road, Lawford, Manningtree, Essex. ...
FOR SALE BY ONLINE AUCTION: terms and conditions apply. We are pleased to offer to auction this parcel of land comprising 2x freehold titles, located in a popular area in Downham, around 4 miles northwest from Wickford train station. The site measures approximately 1.41 acres in total. There i...
Please refer to auctioneer for more information **For Sale By Public Auction 13th November 2025 10:00 AM To inspect the legal documents for this property go to our website to download the legal pack** A Plot of Land Measuring Approximately 286 sq m (3,078 sq ft). P...


















