Properties For Sale in DE73
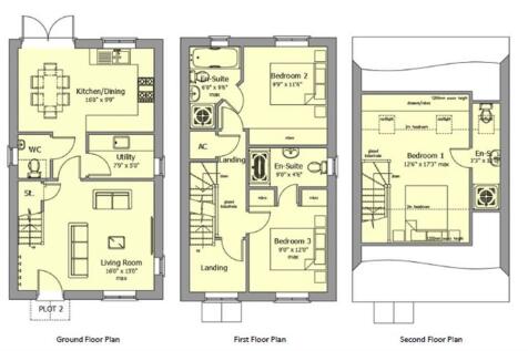
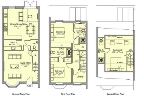
A new residential scheme of 2 and 2.5 storey individual homes with oak carports in a courtyard setting within the Melbourne Conservation Area and designed by award winning practice David Granger Architectural Design. The site extends in all to 0.59 Acres (0.24 Ha) or thereabouts.
A beautifully appointed eight bedroom late Georgian manor house situated behind ancient high walls, in the centre of Breedon Village with car parking and turning for numerous vehicles and an extensive private and mature walled garden. Suitable for a variety of uses and a wealth of period features.
A new residential scheme of 2 and 2.5 storey individual homes with oak carports in a courtyard setting within the Melbourne Conservation Area and designed by award winning practice David Granger Architectural Design. The site extends in all to 0.59 Acres (0.24 Ha) or thereabouts.
A substantial five bedroom detached family home situated on a generous, particularly private approx third of an acre plot off a private drive off Robinsons Hill. The property has off road parking for several vehicles, a detached double garage and stunning private gardens with a wealth of features.
A rare opportunity to purchase a substantial detached family home with large two storey garage on a stunning half acre approx plot in this prime residential location with no chain! The property offers potential for modernisation/extension or re-development subject to buyers requirements and planning
A STUNNING 'ONE OFF' ARCHITECT DESIGNED ENERGY EFFICIENT HOME OFFERING SPACIOUS 4 BEDROOM ACCOMMODATION OVER 2650 SQ FT (EXCLUDING GARAGE) Opportunites like this are rare to the market. A stylish, contemporary, energy efficient home in highly sought after village location. Designed by pre...
A superb sympathetically refurbished, five bedroomed period detached farmhouse, set in grounds extending to over half an acre with river frontage, in a delightful location, with the additional benefit of affording excellent potential investment of five letting properties-approx £24,600 PA.
Stunning 2150 square foot barn conversion situated on a superb private plot within the conservation area of the beautiful village of Wilson, which is located within a short drive of Melbourne, Castle Donington and Breedon. This stunning home has been lovingly created by the current owners who'...
The Old Mill is a highly desirable Grade II Listed residence, beautifully positioned in the heart of the charming town of Melbourne. Nestled beside the historic mill pool—known as Melbourne Pool—the property enjoys stunning panoramic views across the water and surrounding countryside, offering a ...
Substantial (2835 square ft) four/five bedroom detached family home in highly desirable residential location with stunning far reaching views, off road parking, double garage & private enc. garden. Cloaks/wc, spacious lounge, study/ bed 5, dining room, generous dining kitchen, utility, conservatory
A magnificent character property offering a wealth of charm and original features, including beautiful beamed ceilings, reputedly dating back to the 1640s. This gas centrally heated family home is arranged over three floors and includes an impressive hallway with flagstone floors, downstairs cloa...
NO UPWARD CHAINWelcome to your dream home on the edge of charming Melbourne. This stunning five-bedroom barn conversion combines rustic appeal with modern luxury, offering over 2,500 sq. ft. of exquisite living space immersed in breath-taking countryside views. The entrance reveals a sp...
SUBSTANTIAL FAMILY HOME, CIRCA 6400 SQ FT (INCLUDING LOFT, GARAGE & WORKSHOP SPACE) – Positioned in the heart of Chellaston, School Lane presents a rare opportunity to acquire a large and highly adaptable property that offers far more than meets the eye. Set on a generous, private and secure pl...
STAMP DUTY PAID A brand new, high specification detached family residence offering luxury living over three floors — PART EXCHANGE CONSIDERED! Designed with energy efficiency in mind, the property benefits from solar panels, gas central heating with underfloor heating to the gro...
A truly exceptional detached residence, positioned within a highly desirable location and perfectly placed for superb transport connections. This exquisite home offers generous private parking, a substantial double garage, and elegant, contemporary open-plan living, all enhanced by breathtaking, ...
One-of-a-Kind Five-Bedroom Mill Conversion in a Private Melbourne Setting This truly unique five-bedroom property is set within a beautifully converted mill, tucked away in a private location on Castle Street, Melbourne. The mill conversion, completed in 2003, was highly commended by the Civi...
A substantial and extended detached 1930's Family home, gas centrally heated and double glazed, Superb commanding location. Viewing essential - Four good bedrooms, entrance hallway, two sitting rooms, Separate Dining Room, Refitted kitchen, Utility room, First floor, principle bedroom with en sui...
***Planning Permission for Garage Approved*** Located on a quiet country lane within the beautiful award winning village of Wilson. Fabulous non estate individual architect designed four bedroom family home. With the benefit of air source heat pump heating system, triple glazed ...
An outstanding contemporary four-bedroom detached home set along a peaceful country lane in the highly sought-after village of Wilson. Designed and built to an individual architectural specification in 2024, this striking residence combines modern styling with an exceptional level of finish throu...
OPEN HOUSE 10am-12am SAT 27/9 Located in the sought-after village of Stanton-By-Bridge, this substantial Former Coach house on Ingleby Road offers 2,379 sq ft of versatile living space. Built in the 1800's, the property is rich in character, featuring period details & practical and spacious layout
A substantial, four/five bedroom detached family home in idyllic location set back off Victoria Street with off road parking and turning for several vehicles, generous well presented and private gardens to both front and rear and double garage with electric remote controlled door.
Welcome to The Manse, a magnificent detached Victorian property nestled in the charming heart of Melbourne, Derby. This elegant period home embodies classic sophistication with its stunning double frontage and is set behind iconic wrought iron railings, all carefully maintained to preserve its...
Experience quintessential British charm combined with modern elegance at North Street, Melbourne. Nestled along one of Derbyshire's most revered streets, this enchanting period property, built in 1852, masterfully blends timeless character with contemporary comforts. Step into a world of invit...




























































































































































































































































































































































































