Houses For Sale in Southville, Bristol
"This has been the perfect location to raise our children who attended the excellent local schools and enjoyed the community parks. We love to walk to Ashton court and the harbourside for lunch and there is nothing better than coming back and relaxing in the garden in peace and quiet. We also hav...
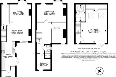
Offered chain free, this rubble-stone fronted terraced home combines period character with modern comfort, all in a highly convenient location close to the amenities of North Street and Wapping Wharf. A neat paved front garden sets the property back from the street, giving it an attractive approa...
This beautiful period terraced house combines classic charm with generous proportions and practical features. Offering high ceilings throughout and elegant original detailing, this home delivers a wonderful sense of light and space from the moment you step inside.
"Merrywood Road has been the perfect first home for us as a couple in our thirties. Vibrant, friendly, and a great community feel with the neighbours. Our garden has been a quiet escape, yet we’re just minutes from excellent transport links into London for work. We’ve loved the local parks, indep...
DATE OF NOTICE: 26/09/2025 27 King William Street, Bristol, BS3 1HH We advise that an offer has been made for the above property in the sum of £380,000. Any persons wishing to increase on this offer should notify the agents of their best offer prior to exchange of contracts.<...



























































































