Properties For Sale in Lancaster (District Of), Lancashire
From the moment you arrive, Rennie Court feels special. The sweeping private driveway and landscaped frontage make a memorable first impression, while the distinctive red-brick and render exterior evokes warmth and traditional craftsmanship. Mature trees and neatly tended gardens frame the pro...
Built in 1913, Bracondale is a wonderfully authentic example of Edwardian, Arts and Crafts Movement architecture. Steeped in original period details that will delight those who appreciate older properties, the charismatic house feels welcoming, restful and has a reassuringly traditional aesthe...
Introducing 8 Woodlands Drive, the perfect property for those seeking a home that combines lifestyle and luxury. Said to have been built for an American actress during the 1960s, this exquisite residence offers an abundance of space and opulence. Step inside to discover a grand family home featur...
This stunning traditional 25 acre working hill farm is situated within the Forest of Bowland ANOB and boasts a range of useful historic and modern outbuildings. With its own wind turbine and superfast B4RN broadband, this property is a modern dream come true offering a much sought after lifest...
Knott Hill Farm offers a wonderful package for embracing life in the countryside with a characterful farmhouse, attached traditional barn and shippons, a large modern barn, stables, gardens, fields and woodland. Together they ensure tremendous privacy and seclusion and provide amenity value if...
Welcome to Five Ashes Farmhouse, Burrow Road, Lancaster, LA2 0AP Dating back to 1792, this detached former farmhouse that has been skillfully extended and renovated to preserve as many character features as possible. Extensive accommodation is tastefully presented possessin...
A quite magnificent residence with 4.55 acres of land and some of the most breathtaking views possible to see, in a highly desirable Lancastrian hamlet. Built circa 1850 Quernmore House, an iconic address in the village of Quernmore boasts four bedroom primary accommodation with a two bed adjoini...
This stunning traditional 25 acre working hill farm is situated within the Forest of Bowland ANOB and boasts a range of useful historic and modern outbuildings. With its own wind turbine and superfast B4RN broadband, this property is a modern dream come true offering a much sought after lifest...
Welcome to Old Bank House, an exquisite six-bedroom family home that seamlessly blends traditional charm with modern luxury. Lovingly restored by the current owners, this stunning residence offers a unique combination of character and contemporary design, creating a warm and inviting atmosphere f...
Plot 9 at Whittington Farm represents everything that makes a Candelisa home special — exceptional design, masterful build quality, and an unwavering focus on lifestyle. With its spacious five-bedroom layout, generous living areas, and flawless attention to detail, this is a home that wi...
Nestled in the charming area of Aldcliffe, Lancaster, this impressive detached house at Craiglands Court offers a perfect blend of comfort and style, making it an ideal family home. With four spacious bedrooms, including a master suite complete with an en-suite bathroom, this property caters to t...
Box Tree Farm is a lovely Grade II Listed detached period property located in the picturesque village of Gressingham. The property is accessed via a quiet lane occupied by only a handful of other houses. Close to the neighbouring village of Hornby with post office, antiques shop, doctors...
**NO CHAIN** This is something really special – opportunity is here ! A four bedroom stone farmhouse steeped in character with fabulous fireplaces, attractive windows and stone flagged floors to name a few. There is also a 2/3 bedroom cottage and substantial detached stone barn set away f...
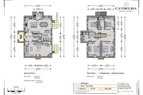
Plot 7 at Whittington Farm represents everything that makes a Candelisa home special — exceptional design, masterful build quality, and an unwavering focus on lifestyle. With its spacious five-bedroom layout, generous living areas, and flawless attention to detail, this is a home that wi...




























































































































































































































































































































































































































